SS-1140
TEK KAT - HAFİF ÇELİK
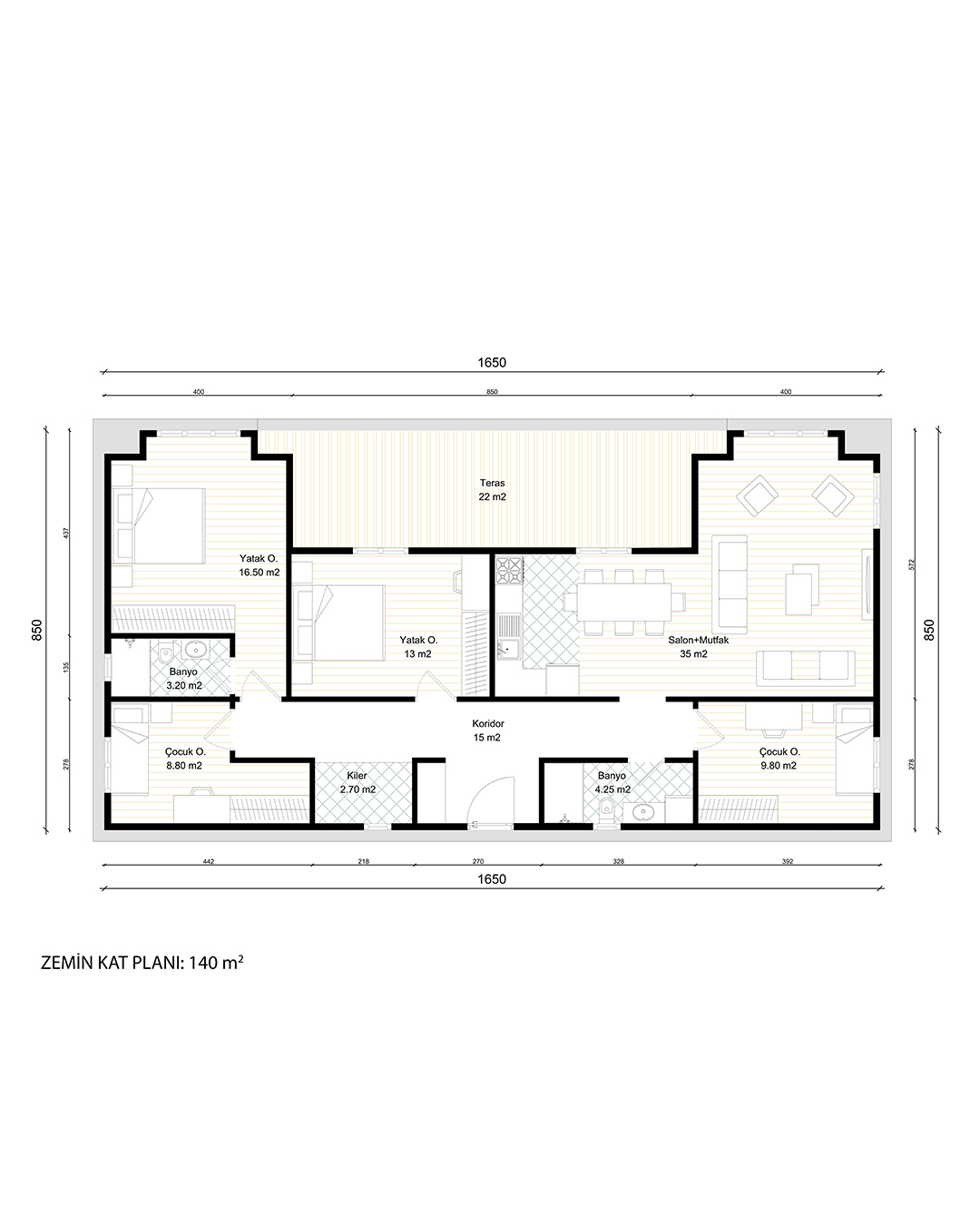
Modern mimariye sahip 140 m² hafif çelik yapımız, yüksek dayanıklılık ve hızlı kurulum avantajı sunar. Depreme karşı güvenli, enerji verimliliği yüksek ve uzun ömürlü bu konut, hem şehir içi hem de kırsal alanlarda konforlu bir yaşam alanı sağlar. Estetik tasarımıyla öne çıkan yapımız, fonksiyonel iç planlaması sayesinde her metrekareyi verimli kullanır.
Firmamızın Sorumluluğundaki İşler
- İstenilen renkte iç ve dış cephe boyaması
- Çelik dış kapı montajı
- Amerikan iç kapı montajı
- PVC doğrama çift ısıcamlı pencere montajı
- Su tesisatının dışa bağlantıya hazır şekilde çekilmesi ve test edilmesi
- Elektrik tesisatının dışa bağlantıya hazır şekilde çekilmesi ve test edilmesi
- Çatı kaplaması, izolasyon, dere inişleri ve oluk montajı
Müşterilerimizin Sorumluluğundaki İşler
- Zemin betonu, her türlü hafriyat işleri ve çevre düzenlemeleri
- Zemin ve duvar kaplama işleri (şap, seramik, fayans, halı vs.)
- Yapının kurulabilmesi için gerekli olan izinler
- Yapı harici dış bağlantılar (elektrik, atık su ve temiz su, sayaçlar)
- Montaj ekibinin konaklama ve yemek giderlerinin karşılanması
- Mutfak alt ve üst dolapları
- Nakliye ve nakliye sigortası
Teknik Özellikler
Metre Kare
140m²
Kat Sayısı
1
Yatak Odası
4 Adet
Banyo
2 Adet
Salon
1 Adet
Mutfak
1 Adet
Balkon
0 Adet
Veranda
1 Adet
Fiyat
₺1.990.000,00



